胡同院:赵锥子胡同108号

胡同院 

老北京的四合院通常位于建筑围合的内部,而赵锥子胡同108号虽然位于老北京的胡同里,但却并不是一个标准的四合院。这个小院直接与胡同的开放空间相连接,之间只有一道入户门。如果没有这道门,这个空间实际上可以成为胡同的一部分。小院的南墙实际上是邻居家的房后墙,如同胡同一样,她作为一道共用的墙使得这个小院更加具有胡同的空间特征。实际上在这道墙上还开有邻居家的两个后墙小窗,甚至可以听到邻居家中传出来的声音与味道。因此我们决定完整的保留这堵墙以及她斑驳的表面,也获得胡同的空间特征。当你一个人坐在这个小院里时,你可以获得视觉与触觉上的私密感并从城市的焦躁中被分离出去,同时院子外的各种声音与味道又会源源不断地传进来,这又使你不觉得孤独而是与胡同存在一个强烈的归属感。

因此,与这堵墙相对映的房屋南墙也就具有了双重特征,既有面向院内的通透性也有面向院外的封闭性。这个具有胡同特征的小院也就成为了建筑更新设计方案的核心出发点,也就是如何从这堵共用墙出发,去深入挖掘并建构出高品质的生活空间。建筑的南墙为了获得这种既内向与外向的双重特征,首先被分割成几组短墙,而后向院内层层叠退。这样在小院的入口处向内观看,房屋南墙如同一道连续的墙,如同在胡同内一样。而在相反的方向,则会看到开敞的玻璃立面,如同在内院中。

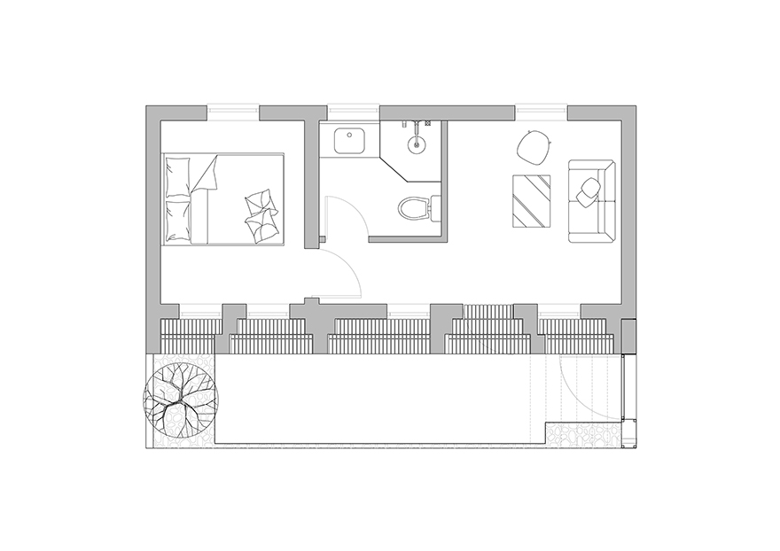
建筑本身,我们将房顶,地面与部分墙身做了更新,特别是增加了防水与保温的设计,此外增加了卫生间与上下水等重要的现代化基础设施,使用者可以舒适地居住与工作其中。此外院落的排水与铺装也做了全新的设计。

赵锥子胡同108号,既像一个院,也像一个胡同,墙在这里既使人们彼此隔离,也使人们彼此相连。


项目名称:胡同院 项目地点:赵锥子胡同108号,天桥北部平房区,北京市 项目功能:民宿 设计类型:旧建筑改造 建筑面积:28平米 用地面积:45平米 设计时间:2018年 竣工时间:2019年 项目业主:北京天桥衡融投资有限公司 建筑师:CU OFFICE | 北京超城建筑设计有限公司 主创建筑师:车飞、章雪峰 设计团队:穆高杰,刘子娟,张璐 结构顾问:H&J 建筑摄影:孙一凡