Tenth garden: Huayan Road No.7

Public space in hutong

This project is located in the historical and cultural district of the new urban area of Xiangchang in Beijing. The existing building was a two-story and flat-top building with block structure. It was demolished because of its dangerous condition. The neighbors in north and south are the traditional Beijing courtyard houses. In west of the site, is the "Huakangli" built in the period of the Republic of China. In east of the site, is a small Hutong with Tianqiao market beside. Since the project location is in the ancient capital style reserves, part of structure was designed as traditional Beijing courtyard house with wooden structure. The parts of the corridor and terrace are in the form of modern flat roof which connects "Huakangli" and Tianqiao market for public. The traditional slop roof is distributed in north and south of the site integrating with same architecture language of the neighbors. Here the two traditions are jointly presented: modernization by Xiangchang's new urban area and traditional Beijing courtyard house.

Quality of time

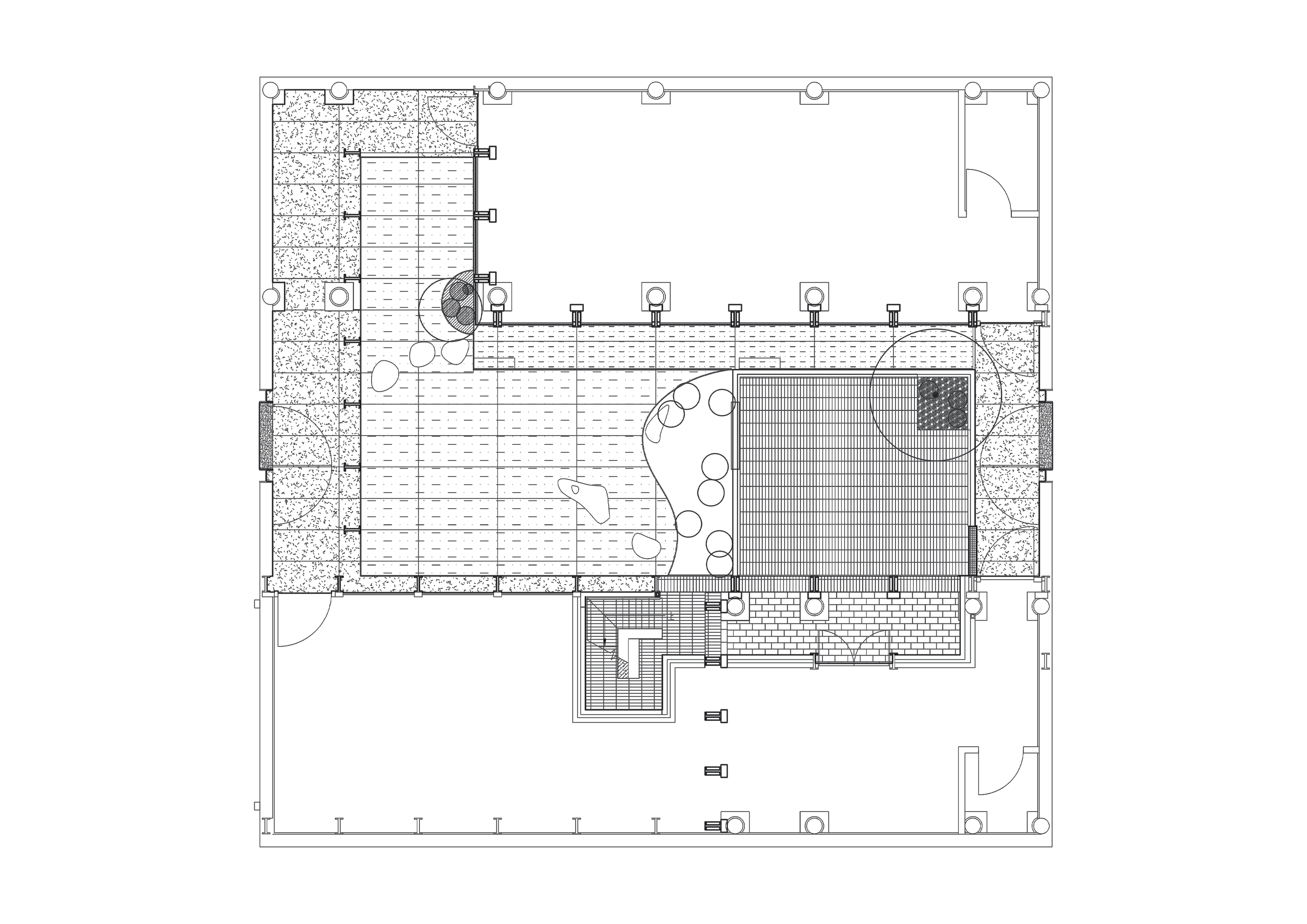
The entire site is a square plot nearly 15 meters by 15 meters. The gate of Beijing traditional courtyard house is usually distributed in the north-south direction. Because the common walls with neighbors on both sides of the north and south, the entrances can only be designed in east-west directions. This also corresponds to its future function as a Hutong museum. In north-south direction, the main body is the north house with additional slop rooftop, and the southern house is a slightly smaller then the northern. The traditional north-south axis is reflected, which represent eternity beyond lives. On west-east direction, the main entrance is set on the east elevation, and the gate on the west elevation are temporarily unavailable due to external conditions. There is a courtyard built by bricks and a garden with a pool as the main body in west-east direction. Therefore the pattern of front courtyard and back garden are created. Here, the stable axis of north-south direction is replaced by the timeline of west-east flows. A set of continuous steel structure with glass curtain slowly unfolded with the timeline of west-east direction. The brick courtyard and the water garden are intertwined with each other. The function of the public space is presented in time, and time makes the space concretely and become vibrant. For visitors, the quality of the space has nothing to do with life, but the quality of time is closely related to it.

De-configuration

It is neither the static present of a traditional building nor a modern flow space, but to create a deep dialectic dialogue of traditional and modern, eternal and flowing. In north-south direction, this dialectical is reflected in alienation of traditional construction and the forming logic of modern architectural. This relationship is also presented tectonically between forming logic of modern architecture and Beijing classic architecture order. The use of wood comes from the classic architecture order, and the use of steel is controlled by the module. The bricks act as a medium full of dialectical dialogue between the two. When approaching wood, bricks are built in a traditional masonry. When approaching steel, bricks are transformed into modern curtain walls. The two brick architecture meets each other during construction and strives to eliminate the spatial dominance of the other. Classic and modern are each other’s environment and De-configure in the timeline.

On west-east direction, the interface space defined by the steel column, from east to west, consists of four elements of transparent glass bricks, frosted glass bricks, glass and empty. These four elements and steel, wooden structure and gray bricks together construct the space-time relationship between open and close, flowing and still. They meet in space, and De-configure in substance and empty.

Tenth garden / One-Fen garden

The living room in the normotopia position and the tranquil garden scenery are a tribute to Chinese classical gardens and lifestyle. One Square-courtyard and half-Tenth pool together constitute Tenth garden. Because the area is about 66 square meters (one Fen) , that is about one tenth of one Mu. Therefore it is named Tenth garden / One-Fen garden. Since Fen also means divide in Chinese, The significance of One-Fen garden also lies in the fact that the garden is "divided" into two parts that are different in substance and empty in Chinese context but complementary in space due to the relationship with the architecture. On the east side, between the two traditional wooden-structure houses in the north and south is a courtyard paved with gray bricks ( Square courtyard), which is relatively closed and square, is regarded as a substance part, but is surrounded by visually-empty glass bricks; On the west side, the black-granite paved pool (half-Tenth pool), surrounded by modern flat-roofed buildings and steel structure corridors, is more open and free, forming a relatively empty part, but enclosed by a solid steel colonnade.The square courtyard and the half-Tenth pool form different paths with the entrances of the building, corridors and steps in water, enriching the various experiences of the Hutong Museum, making the  small-size space large in sight. Looking out from any position in the houses or the colonnade, you can see the Tenth Garden in the center with completely different scenes: a plum blossom on the corner top of the glass brick wall, the bamboo shadow floating in the wind on the ground outside the window, the quiet reflection of the wooden structure on the water, the maple leaves exposed in the corner of the house...... 



project name: Tenth garden: Huayan Road No.7 Location: Huayan Road No.7, Beijng, China Program: Hutong museum Design Type: Public building (architecture, interior, landscape) Building area: 160.5M Site area: 216.5 M2 Design time: 2022 Construction: 2023 Client: Beijing Tianqiao hengrong investment Co., Ltd. Design office: CU office Chief architects: Che Fei, Zhang Xuefeng Design team: Mu Gaojie, Jie yitong, Chen Haifeng, Chen Yu Mechanical Engineer: Huo Jinglong, Xiao Wenxing, Zhang Qiaohong Structure engineering Consultant: Li Ping, Wan Jun Tradition construction: Qi Shan Photography by : Jin Weiqi, Che Fei