Yantai City College of Science and Technology (Phase Ⅱ-2)

1.Project Overview

Yantai City College of Science and Technology (YCCST) is located in Fushan district of Yantai in Shandong province of China. The project site is approximately trapezoidal, about 600 meters long from east to west and about 400 meters long from north to south. The Phase II site covering an area of 351 Mu (1 hectare = 15 Mu) and the Phase I area of 150 Mu together constitute the total campus area of 501 Mu of YCCST. There are five completed buildings in Phase II-1 of the site, including a centrally located library, two teaching buildings, a gymnasium and a dormitory building. The total construction area of Phase II-1 is about 60,000 square meters. Before the implementation of Phase II-2, the overall campus plan of Phase II was adjusted. Its main task was to make overall adjustments to the former master plan of the 351 Mu land area of Phase II, based on the five completed buildings and part of the road network, to transform it into a student-oriented, open campus environment, to reflect the school's new educational concept of "student-centered, learning everywhere, innovation everywhere". All the buildings of Phase II-2 will be implemented in stages. At present, 6 main buildings have been completed, including: a canteen, four dormitories and an equestrian hall. The total construction area is about 88,000 square meters, of which the above-ground construction area is about 80,000 square meters.

2.Adjustment of the former master plan: student-centered campus planning

In the contemporary society of knowledge sharing and information openness, the functions and social roles of universities are undergoing drastic transformation: from knowledge imparting to knowledge production, and from centralized academic inheritance to distributed collaborative innovation.

The transformation of campuses - from ivory towers to "knowledge supermarkets";

The transformation of students - from apprentices to knowledge producers;

The transformation of management - from teacher-centered to student-centered.

The fluid and open information network has made the library no longer have the irreplaceable core function of imparting knowledge, while the ubiquitous public space has organically integrated learning with life, work and leisure. It has broken down the barriers between disciplines and majors, making collaborative and cross-cutting knowledge innovation become the core function of universities. Therefore, the adjustment of the former master plan will be to transform from a cross-axis centralized type centered on the library to a multi-center, community-style open campus space.

3.Design strategy: Designing university campuses like designing cities

The new plan also focuses on combining living and education with campus planning. The university campus is the most important stage in students' lives before they enter society. For most students, it is a transitional stage from a family-oriented introverted life to an urban extroverted life. The university campus has the social function of guiding students to become a responsible and qualified citizen. Therefore, designing the university campus like designing a city has become the primary strategy of the plan.

The original plan took the library as the geometric center of the campus, and the widest main road ran through the campus in a cross axis, which was oriented to motor vehicle priority. The new master plan keeps the original main entrances of the campus, while adding a slow-moving system, emphasizing the walking experience on campus, which is conducive to reducing the speed of motor vehicles and improving the quality of campus life. The overall circulation is planned to organize the motor vehicles driving in a loop road along the campus boundary wall, and the interior is mainly pedestrian-oriented, which separates pedestrians and vehicles to a certain extent.

4. Spatial Planning: Multi-center, community-basedopen blocks

The new campus master plan organizes the functional layout of buildings with "multi-center, community-based" open blocks and create an "open, green, shared and vibrant" campus life. The basic building units that make up the block are in the shape of a square, in which the enclosed inner courtyard space is connected to the external space, becoming an organic part of the campus open space. Even in closed-management student dormitories, the inner courtyard can still be freely entered and exited through the open lobby. The spatial planning of the entire campus breaks the traditional definition of internal closed space and external open space, and is divided into two major parts: open communication space and closed functional space. The closed functional space ensures the different functions, while the open communication space organically combines these different functional spaces into a community. The squares, streets and gardens distributed in the campus constitute multiple centers of the city block, while the open courtyards of each building constitute community spaces with similar forms but diverse contents.

The four dormitory buildings on the southwest side of the campus together with the completed library and gymnasium form a "vibrant block". The two dormitory buildings, the canteen and an existing dormitory on the north side of the campus together form the "campus farm block". The two dormitories on the northeast side of the campus together with five teaching, training and office buildings, the equestrian hall and an existing teaching building form the "campus square block". The two teaching buildings on the southeast side of the campus together with an existing teaching building form the "Boulevard Block" and become an important spatial node connecting Phase 2 to Phase 1. Its planned that each block has a core public space and diverse functions, breaking the functional zoning of single goals and promoting communication and collaboration between different colleges and majors. The library, teaching building, gymnasium, equestrian hall and campus farm will together constitute an important carrier of university life education.

5. Canteen: Campus Life Generator

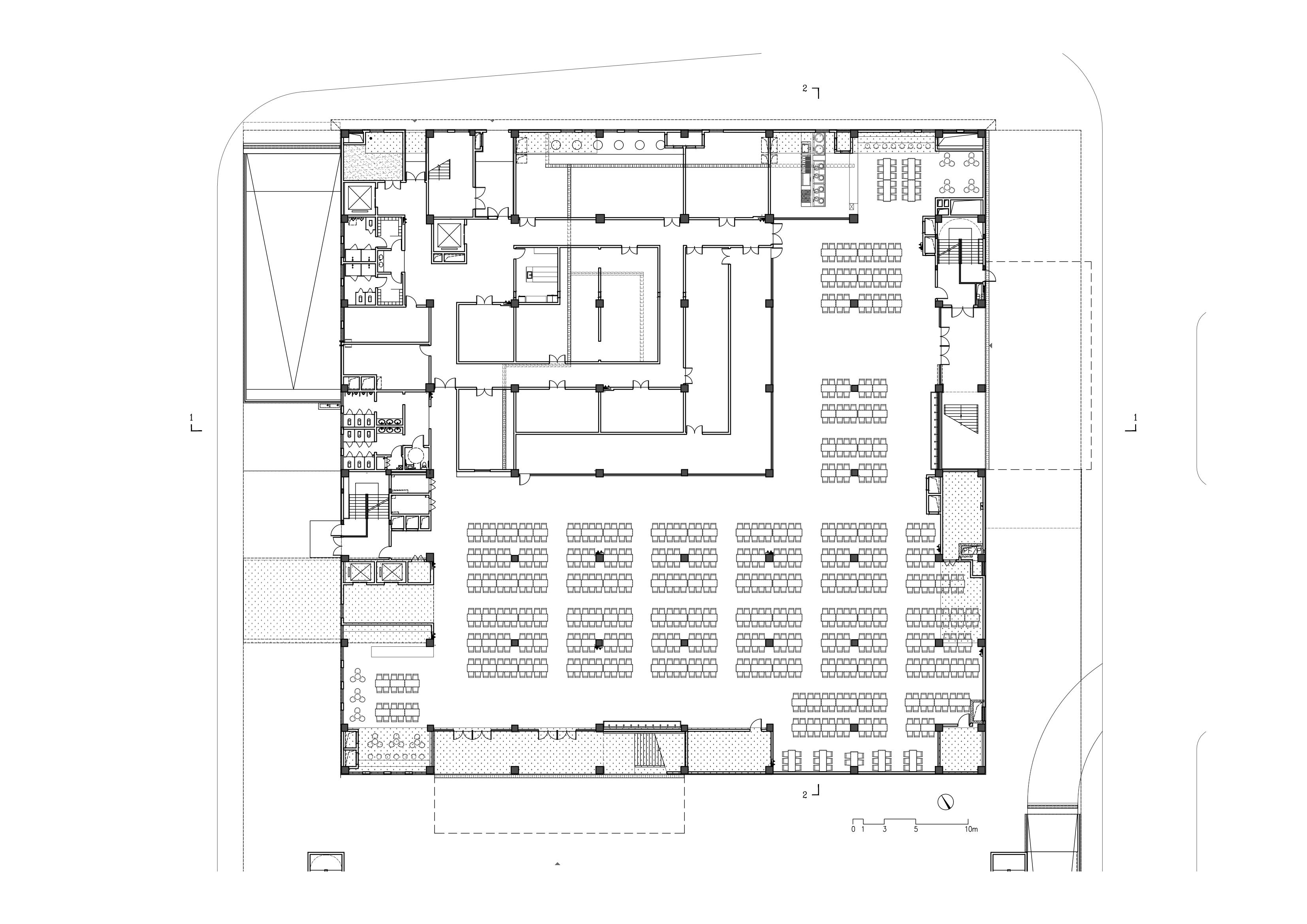
The newly designed canteen is located next to the north gate of the campus, with 4 floors above ground and 1 floor underground, a total above ground area of approximately 14,100 square meters. A set of continuous stairs is embedded in the south facade and extends to the east facade, connecting the first floor to the fourth floor. This space becomes the part of the campus open communication space embedded in the canteen cube. This space is not only used as a staircase, but also a set of different prototypes from urban public spaces: including: corridors, a small square on the second floor, an inner courtyard on the third floor, and a roof garden on the fourth floor. Therefore, this cubic canteen is composed of two parts: an open communication space and a closed functional space. The closed functional space provides breakfast, lunch and dinner for thousands of students in the school. The open communication space provides an important space for campus community life. This group of diverse spaces includes indoor space, outdoor space and semi-outdoor space, which are connected together to form an urban extroverted living space. At different times of the day, it will be fully utilized to hold open lectures, flea markets, community activities, birthday parties, course exhibitions, project promotions, and even dances and open-air movies,etc. The function of the canteen building goes beyond the basic attribute of three meals a day and becomes a campus life generator that stimulates public interaction and promotes face-to-face communication.

In architecture language, The building presents the materiality of space by cutting and splitting parts. The volume covered by hand-plastered is cut, and the cut inner skin is covered with aluminum panels, presenting a smooth space de-materialized. The function here is public communication.

6. Landscape Design: Open Block & free-smooth campus landscape

The overall landscape concept reflects and strengthens the concept of the new campus master plan adopting "multi-center, community-style" open blocks. The landscape design of Phase II-2 is deepened on the basis of the overall campus landscape planning. It not only regards this phase as part of the overall campus landscape, but also considers the open space function and landscape atmosphere of this phase project scope.

The avenue connecting the north gate to the completed library of Phase II-1 is designed as a wide and representative boulevard, which echoes the landscape of the boulevard block on the southeast side. Together with the boulevard entering from the east entrance, it forms a boulevard landscape that runs through the campus. the boulevard is also the main road connecting and leading to the public spaces of other blocks. In order to give priority to walking in the internal area of the campus and create a more overall smooth campus environment, the road along the campus boundary wall is planned as a road serving relatively fast vehicle speeds. Parking spaces are set up on the side of the wall according to spatial conditions. This is convenient for parking and helps reduce traffic on the internal roads of the campus. Therefore, street trees are planted on both sides of this circular road to create a circular tree-lined driveway along the campus wall, which is both recognizable and comfortable. The roads between blocks within the campus, on the contrary, are considered as part of the entire open block groups, serving the walking priority and free-smooth campus landscape atmosphere. Therefore, these roads are designed as one-way lanes with a more pleasant scale, without rows of street trees. Instead, the landscape connects the blocks within the entire campus into a closer whole. Trees and shrubs are dotted in appropriate locations according to landscape and space needs (for example: street corner views, appropriate shielding and separation, etc.), creating a free and open landscape atmosphere while also saving construction costs.

The large square on the south side of the canteen and the green space on the northwest of the site are two important open spaces on campus: one is the outdoor "stage" of campus life, and the other is the leisure "garden" for teachers and students. The square is an outdoor extension of the canteen public space where teachers and students gather every day. It not only meets the needs of a large number of people entering and leaving at the moment (meal time), but is also an important open space for events and campus activities. Therefore, it is designed as a flat square with a streamlined lawn, lively but concise and multifunctional. Through meticulous elevation and paving design, the two main entrances (south and east) from the square to the canteen are designed without steps, but with gentle slopes to allow people entering the canteen smoothly, which is more friendly and convenient for handicapped. All main entrances to the dormitories and the equestrian hall are considered with this detail, which reflects the free, open and smooth campus landscape concept in the detail design. The green space on the northwest is a relatively quiet and green garden. A large lawn is usually a scene on a campus. The flat lawn is dotted with big trees here which provides an area for teachers and students to take a walk and relax after their daily work and study. Its visual openness and publicity are considered as well for ensuring safety as for activities.


project name: Yantai City College of Science and Technology(Phase Ⅱ-2) Architect: CU Office Client: Yantai City College of Science And Technology Location: Hebin Nanlu 99, Fushan district, Yantai, China Design Tasks: University Campus Planning、Architecture Design、Landscape Design Building Type: Educational Building Site area: 269,672 ㎡ Floor area: 88,281 ㎡(Phase Ⅱ-2) Design: 2023 Construction:2024 Principal Architect: Fei Che, Xuefeng Zhang Design team: Shiguang Zhao, Gaojie Mu, Yitong Jie, Xiao Sun, Haifeng Chen, Yu Chen, Yaowen Zhang,Mingrun Huang Collaborators: Construction Design: Tong Yuan Design Group Co., Ltd.  Sponge-City Design: Architectural Design & Research Institute of BUCEA Co., Ltd Photographer : Jin Weiqi