Post-disaster Reconstruction Plan for Minle Village

Magic Cube Architecture
How to meet the different needs of more than 500 households within a limited time and budget? This is the problem faced by architects who participated in the reconstruction of Minle Village, Tumen Town, Deyang, Sichuan after the 5.12 earthquake on 2008.
The reconstruction work organized by Peking University's "Post-Earthquake Home Building Action" and the China Foundation for Poverty Alleviation is more like a bottom-up approach, gathering outstanding independent architects to propose plans and letting villagers build independently, of course, taking the needs of villagers into consideration. Finally, the villagers voted on the plans proposed by the architects and chose the "magic cube architecture" designed by us.
In terms of design concept, it is a "semi-DIY" model: the design plan only provides concrete frames and foundations, and the farmers complete the enclosure and possible structural additions by themselves. Villagers can design independently within the limited boundaries.
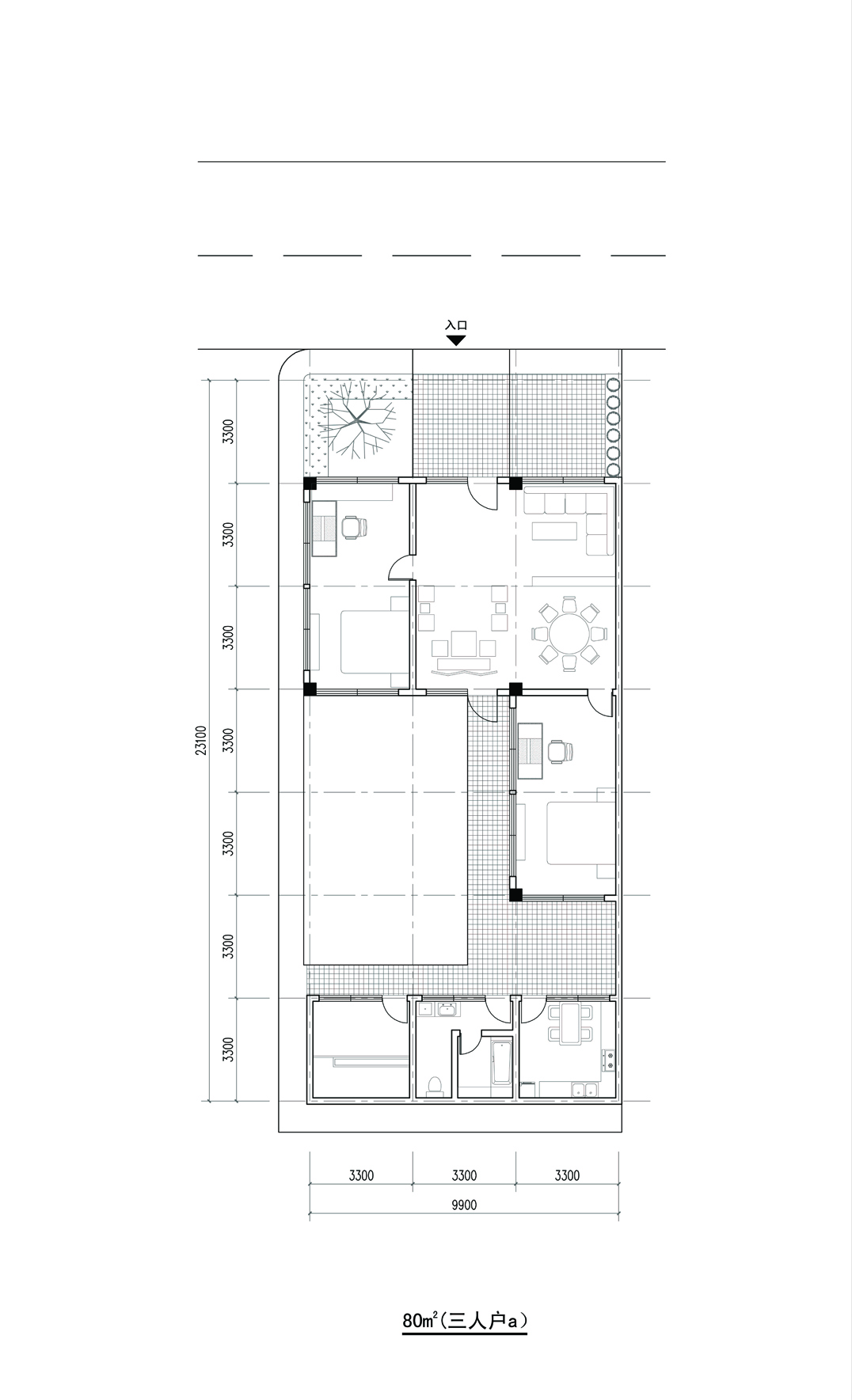
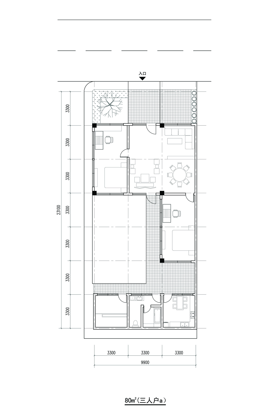
We quoted the concept of "magic cube" and rotated and collaged small cubes with different functions to obtain flexibility in plane and space. Starting from the land use, they established a grid system with 3.3 meters by 3.3 meters as a basic spatial unit. The size of all residential land is 3 x 7 squares, and the cost of one "square" is controlled at about 7,000 yuan. Farmers can choose how many squares of houses to build according to the subsidies received, their own financial resources and the relevant regulations on homesteads. As for the internal layout, farmers can arrange the functions of these blocks according to their own needs to form a layout, and the building can be established in structure.
Semi-standardized design can improve efficiency, give farmers autonomy, and take into account the egalitarianism of rural areas - for example, the width of the "door faces" facing the street is the same, all 3 squares.
In post-disaster reconstruction, in addition to physical reconstruction, the reconstruction of community relations is also very important. The original community formed naturally by relatives is now broken up and placed on the street, and neighborhood relations have become the core of the relationship between people. Therefore, how to make space and even the process of forming space stimulate the formation of such relationships is meaningful.
The plan moves the courtyards of traditional houses - those productive houses and yards - to the back of the house, so that the houses face the street and present an open attitude. They asked for space between the house and the street to be used as street gardens, with the aim of encouraging people to go out and interact in front of the house. Villagers now also need to go out, as rural areas are now more socialized and urbanized. For example, business people used to come to the door to sell their goods, but now residents have to go out to the store. Our plan is actually a mixed type. The new generation, who are willing to go out, likes to move around in front of the house and go to the street, while the older generation can also find courtyard life in the backyard.
"Magic Cube Architecture" is just a model provided by architects. Community relations begin to grow during the discussion of the plan and land adjustment, the selection of neighbors, and the independent construction, rather than "starting" after the construction is completed. Small street gardens, crossroads, village entrances and other public space planning are the contents of our plan for the future growth of neighborhood community relations.