Calligraphy of Light: Shitian Cafe

Calligraphy of Light: Shitian Cafe
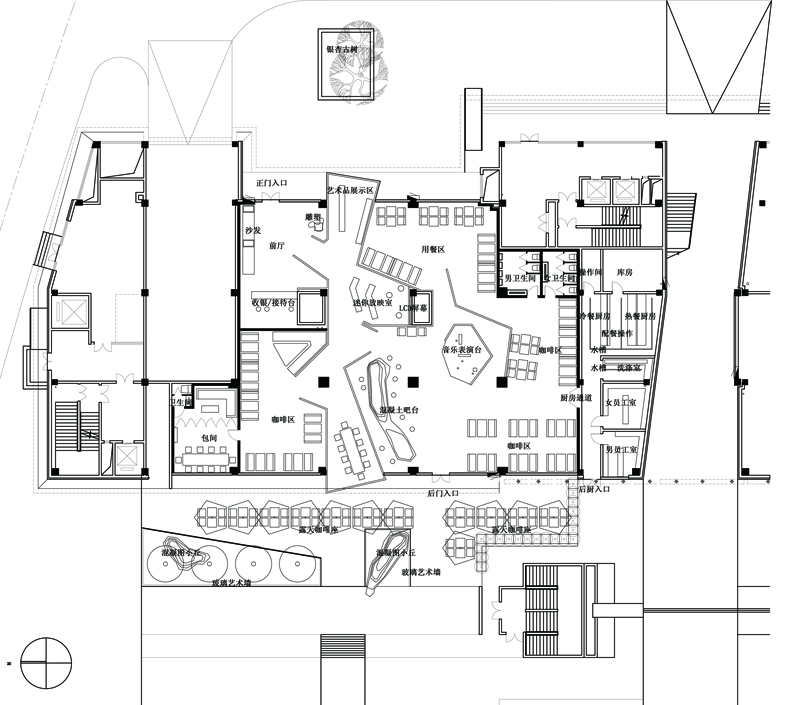
Project Content: Interior Design
Project Location: Chengdu
Client: Shitian Cafe

Site Area: 3300 m2
Building Area: 1020 m2
Design Time: 2008
Main Designer: Che Fei, Zhang Xuefeng

"Calligraphy of Light" is a design for the Chengdu Shitian Cafe. After the site inspection, the site conditions are limited by the large depth of the internal space, the dim lighting, the limited space height, two preserved old trees facing the street on the east, and the pedestrian public space on the west. Considering the open frame structure inside, it is necessary to make some space grids to increase the privacy and affinity in the space. In order to prevent such grids from making the darker and shorter space more oppressive, the initial idea is to build a set of structures that can adjust the light transmittance through lights, dividing the space into effective areas and strengthening the characteristics of the space to make it integrated rather than fragmented. Finally, glass was selected as the material, but its cross-sections were superimposed and fixed together. And irregular holes were left on the facade. Under the changes of multiple sets of lights, the glass wall is sometimes transparent, sometimes translucent, and sometimes opaque. The shadows and light change in the glass wall and the openings. The design of the structure focuses on connecting the landscape elements on the east and west sides and bringing these elements into the interior of the space. The glass structure is like calligraphy written in the dark with light, combining functions, scenery and light in the space. Although the project was not finally built, we made a 1:1 sample of the glass wall.