Hutong Yard

Hutong Yard

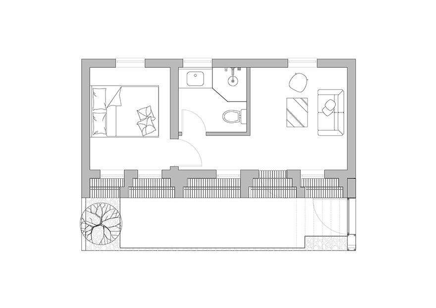
The traditional Beijing courtyard is usually a courtyard enclosed by houses. Though Zhaozhuizi Hutong No.108 is located in a historical Hutong area, it is not a standard Beijing courtyard house. This small courtyard is a narrow space directly connected to the open space of the Hutong with a only one entrance gate without which this courtyard space could actually become part of the Hutong. The south wall of the small courtyard is actually the back wall of the neighbor’s house. As in a Hutong, the shared wall makes this small courtyard more with a characteristic of a Hutong space. There are two small windows in the shared wall as the back wall of the neighbor’s house. There are even fain sounds and meal smell wafting from neighbors and the tiny Hutong outside. Therefore, the idea is to completely preserve the share wall and its mottled surface and thus obtain the Hutong-like spatial characteristics. When sitting alone in the small courtyard, you get a sense of privacy in vision and touch and being separated from the anxiety of the city, meanwhile you won’t feel lonely but a strong sense of belonging to the Hutong along with diverse sounds and smell faintly from outside.

Thus, the south wall of the house opposite to the shared wall should have a dual feature of both the permeability facing inside to the courtyard and the sealing of facing outside to the courtyard. This small courtyard with the characteristics of Hutong has become the core starting point of the architectural renewal design, that is how to proceed from this shared wall to dig deeply and construct a high-quality living space. In order to obtain this dual feature of both inward and outward, the south wall of the house was first divided into several groups of short walls and retreated back to the courtyard. Looking inward from the entrance of the small courtyard, the south wall of the house is like a continuous brick wall just like in the Hutong, but looking from the opposite, you will see an open glass façade just like in the inner of a courtyard.

For the house, the roof, ground and part of the walls have been renovated, especially designing to add waterproof, heat isolation, toilets and drainage make it comfortable for users. The landscape idea focuses on the pavement with the same material and accordingly pattern to the meaningful south wall of the house.

Zhaozhuizi Hutong No.108 is like a yard as well as a Hutong. The wall here separates people from each other as well as connects people with each other.


project name: Hutong Yard Location: Zhaozhuizi 108, Tianqiao area, Beijng,China Program: Studio + Apartment Design Type: Reconstruction Building area: 28 M2 Site area: 45 M2 Design time: 2018 Construction: 2019 Client: Beijing Tianqiao hengrong investment Co., Ltd. Design office: CU office Chef architects: Che Fei, Zhang Xuefeng Design team: Mu Gaojie, Liu Zijuan, Zhang Lu. Structure engineering Consultant: H&J Photography by : Sun Yifan