Empty Buildings – Hutong Impression, Qinglong Hutong District Renewal and Regene

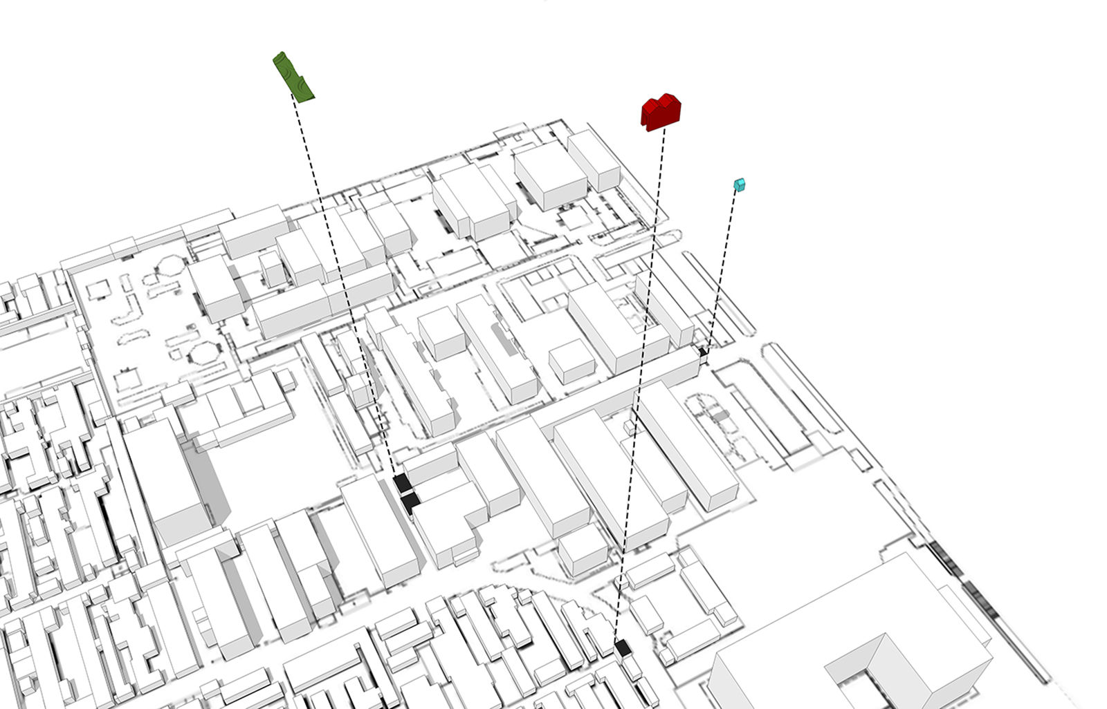
In 2016, the Qinglong Hutong District Renewal and Regenerate Project was co-sponsored by Zhongguancun Dongcheng Garden Management Committee, Beijing Gehua Creative Service Center and its affiliated streets. Hutong impression is a series of landscape works. In the past two years, we have designed and completed three small projects: Neighborhood Incubator, Memory Server and Gratitude Spring Square. They are located in different locations of in Qinglong Hutong block. Qinglong Hutong Block is located in the historic urban area within the Second Ring Road of Beijing. It has not only historic protected buildings such as the Lama Temple and Bailin Temple, but also a large number of shotgun houses and quadrangles with traditional brick and wood structures in old Beijing. It also has modern enterprise headquarter buildings such as Gehua. Therefore, it is a highly culturally intensive, traditional and contemporary neighborhood. In the narrow hutongs, every day, it is crowded with traditional residents of old Beijing, well-dressed white-collars and backpackers. Because of historical reasons, it is very difficult to find a suitable leisure space in the area of shotgun houses and quadrangles, and the outward urban public space is constantly extending to the Hutong spaces. The two spaces overlap with each other and are full of tension. Qinglong Hutong block has a complicated spatial character. According to the network and texture of inward and outward space in the block, we use environment – programme to design three small projects to stimulates the spatial instinct of the neighborhood of Hutong, and gradually promotes the revival of the whole block. Among the three small projects that have been implemented, there are not outstanding architectural modality. Two of them are made up of barely one steel structure, while the other one is made up of only one square - they are empty buildings. Therefore, they can hardly be called buildings in a strict sense. Although they are not “buildings”, they can be “building”. They are designed and carefully placed in particular locations, not “spotlighting” their own appearance, but being in the “construction” of public space in the neighborhood and the daily life there. Therefore, they are designed as empty buildings to facilitate participation and shaping of urban space. They do not even have a fixed architectural form and appearance, because at the beginning of the design, they are defined as unfinished state, as a platform for space production, similar to the concept of social sculpture by Joseph Beuys, whose final form is completed by the local residents and users together, and constantly updated thereafter. Therefore, they are no longer keen on figurative forms, but pay more attention to the shaping of daily life and its space. Therefore, the "empty buildings" are not empty buildings, but buildings of open space, which construct and promote a positive and sustainable community life.


 [1] Hutong Impression 1 - Neighborhood Incubator 

The branch road of Zangjingguan Hutong in Qinglong Hutong District is a dead end. We set up a symbolic entrance and exit at the junction of this Hutong and Zangjingguan Hutong, which not only separates the inward neighborhood space from outward public space of the hutong, but also strengthens the spatial identity of the inner space of the hutong. This sense of identity will gradually enhance the communication and common life between Hutong neighbours. People will gradually come out of their rooms to kick shuttlecocks and eat fried sauce noodles together in Hutong. This design does not require a lot of capital investment, but stimulates people's enthusiasm to improve and maintain the environment independently. Therefore, hutong is not any longer an impression here but a positive way of life. It not only restores the dead hutong, the branch of Zangjingguan Hutong, to an open space of the neighborhood, but makes the main road of Zangjingguan Hutong full of public characteristics. A group of red fabrics and steel frames form the environmental architecture, which originates from the structural morphological analysis of the space and its environment-programme rather than from a shape. Its architectural form is materialized by its environment-programme. With the end of Beijing Design Week 2016, the red fabric was removed, leaving only an abstract steel frame, but its significance did not disappear. People here can dress it up again in various ways, such as hanging lanterns during festivals. Thanks to it, people encounter in urban public space and interact in the neighborhood.


 [2]Hutong Impression 2 - Memory Server 

This location serves as the entrance to the Zangjingguan hutong, adjacent to the Second Ring Road in the north and a subway entrance. Spatially, it is the transformation node between urban public space and Hutong neighborhood space. Therefore, the design here will prompt people to move from the fast urban space to the slow hutong space – a slow and quiet friendly neighborhood space. It will become a business card of a space, providing the possibility for the occurrence and growth of community culture. With the accumulation of time, the community's cohesion will gradually take shape. 


[3]Hutong Impression 3 - Gratitude Spring Square

This location, next to the school, is a rare public open space in the Zangjingguan hutong. It is a gathering space for white-collar workers, tourists, parents who pick up and drop off children, and is also a space for local residents to interact. The plane form looks like a spring, so it is also a place of gratitude. It is a space for the government to give back to local residents, improve their quality of life and improve their living conditions. It is also a space for students to be grateful to their parents and teachers.

Project Description: Urban Regeneration Project Location: Qinglong Hutong Block, Beijing, China Architecture Area: 15M2 Chief architects: Che Fei, Zhang Xuefeng, Design team: Qu Feifan, Mu Gaojie Design Offices: CU Office Design time: 2016-2017 Construction: 2016-2017 Construction materials: stainless steel, concrete.